Reconstruction of Guangzhou urban villages' traditional lineage culture in the context of rapid urbanization:From spatial form of ancestral hall to behavioral patterns of villagers
TAO Wei1, 2, , CHENG Mingyang3, FU Wenying1
1. School of Geography, South China Normal University, Guangzhou 510631, China2. Cultural Industry and Cultural Geography Research Center, South China Normal University, Guangzhou 510631, China3. Fdar Consulting Co. Ltd., Beijing 100029, China
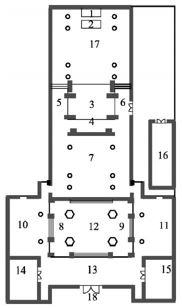
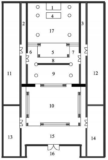
China is a country with exuberant cultural traditions, yet little of which has been paid attention to in rapidly urbanizing context in contemporary China. Lineage refers to the organized group of descendants of a single ancestor by which the lineage membership is determined. Despite the disappearance of many villages in the city, the ancestral hall often survived as the symbolic tie between the single-lineage villagers. Previous studies on Chinese rural restructuring mainly focus on the societal and cultural consequences. What these two aspects in studies of rural areas tend to vanish, or only take it implicitly, is the spatial processes that is closely related to the societal and cultural restructuring. Therefore, this paper intends to apply the sociological architecture thinking in space syntax methodology to explore the social logic behind the transforming spatial character of the typical lineage architecture, the ancestral hall. Taking two typical ancestral halls located respectively in Liede and Zhucun urban villages in Guangzhou as the research objects, the paper has unfolded the relationship between the morphological characteristics and behavioral patterns of villagers. Through field survey and mapping and face-to-face interviews in the Leide and Zhucun villages, it is found that (1) The newly-built ancestral hall in Liede village shows great difference compared with the old one in Zhucun village owing to the need to adapt to the new social functions, which is embodied in such transformation in spatial form as the breaking of axial symmetry pattern and the declining position of the sacred space in the overall spatial organization; (2) The decline and restructuring of spatial functions and the correspondent spatial organization highly conforms to the waning of the lineage consciousness, in which many traditional sacrificing activities are replaced by entertainment activities, and recreation and feasting have become the primary activities for villagers in the ancestral halls. Compared with the old ancestral halls, the newly-built ones in the central locations, as in our Leide case, evolved into non-excluded space that is aimed at profit-generating in the course of urbanization; (3) As the representative for lineage culture, the evolving spatial morphology of the ancestral halls is the intuitive evidence of lineage culture's recession and reconstruction, reflecting the changing mode of villager behaviors; (4) In the time of the couple madefamilies after the 20th century, the lineage consciousness of villagers is in the gradual recession, especially when the overall cultural environment for traditions has changed drastically. To sum up, the study not only provides new perspective for studying the traditional architectural type and traditional villages, but also in practical terms gives valuable suggestions to the protection and regeneration of traditional architecture and milieu in the context of rapid urbanization.
Keywords:rapid urbanization
;
Guangzhou urban village
;
space syntax
;
ancestral hall
;
lineage culture
TAOWei, CHENGMingyang, FUWenying. Reconstruction of Guangzhou urban villages' traditional lineage culture in the context of rapid urbanization:From spatial form of ancestral hall to behavioral patterns of villagers[J]. 地理学报, 2015, 70(12): 1987-2000 https://doi.org/10.11821/dlxb201512010
1899年,O Schlüter发表的著名论文《城镇平面布局》,标志着城市形态学作为一门学科而诞生。自此以后,城市形态学形成了三大主要流派:英国Conzen学派,意大利Muratori-Caniggia学派和法国类型形态学[22]。1984年城市形态学中出现了新的理论与分析方法—空间句法,该理论主要代表人物为B Hillier和J Hanson[23]。其中,J Hanson从其研究之初就开始关注特定类型的建筑[24],紧随其后的大量工作使得特定类型建筑的研究在空间句法中占有非常重要的地位。其中关于家庭空间(house)的分析占据主导位置[25-29],研究不仅关注了家庭空间的空间逻辑及空间演变,也分析了房屋建造决策者对空间的影响等。此外,在特定类型建筑的研究中,对办公室[30]、博物馆[31]、宗教建筑[29]等也给予了分析,一方面探讨了空间组构问题,另一方面也对其社会逻辑(主要是功能)是如何影响空间组构的论题进行了解答。除此之外,还对精神病院③(③ De Syllas J. Domestic asylum: A study of 11 local authority hostels for mentally handicapped people. Brasilia: Proceedings of 2nd International Space Syntax Symposium, 1999.)、福利院④(④ De Arruda Campos M B, Lemlij M, Manning S. The role of the building layout in the delivery of social work services. Istanbul: Proceedings of 6th International Space Syntax Symposium, 2007.)、文学空间[32]等进行了阐释。在西方现有文献中,对特定建筑类型的关注主要集中在现代建筑方面,但对特定文化背景下出现的特定传统建筑类型的研究却相对匮乏。空间句法在私人领域建筑空间研究中强调渗透与隔离性,探讨了空间与人们日常行为模式及社会文化背景是如何衔接的,为中国文化背景下产生的家族空间、家空间研究提供了新的思路;在公共性建筑空间中强调引导与暗示性,探讨了空间组构与功能之间的关系,以满足广泛服务对象的需求。空间句法虽一直致力于探寻空间与社会文化之关系,但仍过多关注形态自身的话题,而在其与空间及空间意义、社会文化等关系的探讨上仍相对薄弱。反观国内,城市形态学更多地集中于中、宏观层面的研究[33-35]。对于村落层面,主要关注村落聚居整体形态演变的驱动机制,对村落特定物质形态要素的分析比较少[36-38]。对特定类型建筑空间,尤其是探讨传统建筑空间及其背后社会逻辑的文献在国内并不多见[39]。对快速城市化进程中特定类型传统建筑的空间逻辑及其背后社会逻辑的研究则更显匮乏。祠堂是中国传统宗族文化作用下的空间产物,是中国传统建筑类型的典型代表之一,在快速城市化的进程中,祠堂空间逻辑的重构正映射出了中国传统宗族文化的重构。
This paper proposes that Hillier and Hanson's thought on society and space has wider applications for social theory in general and or applied historical research in particular than has previously been acknowledged. This epistemological isolation can, to an extent, be explained pragmatically by the inevitable difficulties of inter-disciplinary translation of historical research conducted in space syntax mode. However, the principle concern of this paper is to explore a more fundamental, theoretical, reason why researchers in the historical disciplines can struggle to engage with Hillier and Hanson's work: namely the marginalization of temporality in the 'theory of spatial description' that is the conceptual foundation of the space syntax theory. The claim is not that time has been altogether ignored; on the contrary the temporal nature of reality figures largely in the theory. Rather, the argument here is that this aspect of the theory has, in practice, been deliberately subordinated to the overriding task of articulating a formal morphological grammar of social organization. Perhaps inevitably this emphasis has focused attention on the synchronic structure of space, to which notions of temporality remained essentially external. However, it is equally clear that this emphasis has come at the cost of introducing some inconsistencies in the underlying theoretical proposition of spatial description. The consequence, it is claimed, has been to amplify the difficulty in using Hillier and Hanson to articulate temporality in space. This difficulty raises issues not only for those with a particular concern in built environment history but, more generally, with anyone concerned to understand the complex relationship of architectural space to how people live. Through a critical review of space syntax theory and its intellectual antecedents in the light of what could be termed the 'temporal turn' in the physical sciences, this paper makes the case for time-space descriptions as a natural development of Hillier and Hanson's theory of spatial description that is necessary if space syntax research wishes to extend its engagement with the historical disciplines.
[2]
LinYaohua.Lineage Study of Yixu.Beijing: SDX Joint Publishing Company, 2000: 48-70.
Architecture is frequently considered to be a craft, an art or a technique. This article also holds it to be a science, which allows us to look at places from a specific point of view, one not akin to those of other disciplines. In examining modalities of knowledge, I suggest there has been a change of paradigm in the field in recent decades, one that recovers reflexive-theoretical knowledge. Asserting architecture to be a scientific discipline means not denying, but rather strengthening interdisciplinarity in dealing with questions related to places produced or appropriated by people. In what follows, therefore, I emphasise contributions by authors from other disciplinary fields, who look at places from a morphological point of view. I explore architecture as an independent variable: once ready, it affects people in various ways, the sociological way included. The latter may be encapsulated in the following questions: does formal-spatial configuration (voids, solids, their relations) imply desirable ways for individuals and groups (social classes, genders, generations) to locate themselves in places or to move through them, and consequently desirable conditions for personal encounters and avoidances and for the visibility of one another? Does the type, quantity and relative location of activities imply desirable patterns for the utilization of places, in space and time?
[4]
LüSimian.The history of China's system.Shanghai: Shanghai Education Press, 2005: 214-240.
ZhongChong.The North River Basin: The Study of the Clan, the Morphology of the Settlements and the Ooccurred History. Beijing: The Commercial Press, 2011.
FengJiang.In the Name of Forefathers: On the Traditional Kinship-based Settlements and Ancestral Halls in Canton Prefecture during the Ming and Qing Dynasties. Beijing: China Architecture & Building Press, 2010.
Toronto's countryside is a special place, in part, because Toronto as the economic engine of Canada has transformed itself into a mixed productive-reproductive milieu early, and has become a power centre in its own right. The image of the rural idyll prevails, the affluent classes of Toronto have established themselves in a lovely low density eden of uplands, woods and humanly sized agricultural holdings. Boosterism has, at least partially, been quelled, the incipient alliance between the dispersed bourgeoisie and farmers was slowly consolidating. Then, the government of the Province of Ontario made the mistake of launching what has widely become recognized as an attack on the countryside through the siting of three waste disposal megadumps in the backyards of the new arrivals. Social mobilization and resistance coalesced and spread. Some of the response was predictable but the social mobilization has produced another of the nails in the coffin of the current provincial government. Given that the government of the day was formed by a social democratic party, the New Democrats, the issues of wider ideology could not help but overtly form part of the ambience of struggle. Issues of urban and rural have cleverly been put to the front by the local opposition to the waste dumps, while class, particularly property has been hidden, producing a united front of the propertied against the government and the urban core to the south. The class struggle continues.
[14]
ShubinS.
The changing nature of rurality and rural studies in Russia.
This paper seeks to outline different strands of the reconfiguration of the social and spatial perspectives on the countryside in Russia in the last 20 years. The country's transition implied changes in the production of knowledge, including the re-examination of research topics and bringing new theories into rural studies. The article strives to develop a theoretically informed critique of the recent studies, specifically addressing the changing vision of rurality. Taking as a starting point traditional concerns in rural discourses, i.e. the ways rurality have been traditionally studied in Russia, this paper seeks to identify what rural studies might gain and lose from the shift in academic research. Critics have focused on the problems of bringing together past and recent trajectories in rural research, concentrating on the power of construction of particular rural discourses in different environments. The reconstruction of changing rural discourses aims to provide an
[15]
Smith DP, HoltL.
'Lesbian migrants in the gentrified valley' and 'other' geographies of rural gentrification.
This paper explores the migration and cultural consumption practices of lesbian households within processes of rural change. Taking forward Phillips’ (2004. Progress in Human Geography 28, 5–30) discussion of neglected geographies of rural gentrification, and building upon Halfacree's (2001. International Journal of Population Geography 7, 395–411) critique of dominant conceptualisations of rural in-migrants, the paper presents empirical findings from a qualitative study of lesbian households in Hebden Bridge, West Yorkshire. This follows up an earlier study of rural gentrification (Smith and Phillips, 2001. Journal of Rural Studies 19, 457–469). Lesbian households are shown to be a significant group that socially and culturally (re)produce distinct constructions of rurality, and act as gentrifiers via their migration, residential, and consumption practices. Many parallels to the migration processes of non-lesbian gentrifiers in Hebden Bridge are revealed, with the alternative cultural structures of Hebden Bridge being a key factor. We therefore argue that lesbian households should not be ‘othered’ within discourses of rural gentrification. The discussion emphasises the value of focussing upon neglected socio-cultural groups in robust ways, in order to shed light on the wider lifestyles and experiences of diverse rural populations, and to deepen understandings of other geographies of rural gentrification.
[16]
JordanK, Krivokapic-SkokoB, CollinsJ.
The ethnic landscape of rural Australia: Non-Anglo-Celtic immigrant communities and the built environment.
Rural ethnic minorities occupy unique economic, social, as well as geographical places in Australian society. Non-Anglo-Celtic immigrants have transformed the rural landscapes through the construction of public and private spaces expressing their cultural heritage. These sites can also significantly impact the dynamics of social cohesion and inter-cultural relations in multicultural rural communities. The paper explores the potential role of the sites built by rural ethnic minorities in promoting both intra-group solidarity and inter-group dialogue. It also provides insights into complexities of multicultural place-making. The paper is divided into two parts. The first part briefly explores the literature on the migration and heritage, place, belonging and social cohesion, and the relationship between social capital and the built environment. The second part outlines empirical findings from Griffith, a regional town in New South Wales. The focus is on the places built by Italian immigrants, such as the Italian clubs and the recently built Italian Museum and Cultural Centre. The construction of these places facilitated a sense of solidarity among the Italian immigrants and expressed their belonging to place. However, the immigrant's attempts at place-making simultaneously involved inscribing a degree of exclusivity and a strategy of becoming more a part of their new environment. In doing this there is also potential for multicultural place-making to intensify the existing intra- and inter-group tensions.
Three basic assumptions, common in the literature on tourism, regarding “commoditization”, “staged authenticity”, and the inability of tourists to have authentic experiences are re-examined. Authenticity is conceived as a negotiable rather than primitive concept, the rigor of its definition by subjects depending on the mode of their aspired touristic experience. New cultural developments may also acquire the patina of authenticity over time — a process designated at “emergent authenticity”. It is also argued that commoditization does not necessarily destroy the meaning of cultural products, although it may change it or add new meanings to old ones. Conclusions contrary to the deductions following from the above assumptions are spelled out, and a new approach to the study of authenticity and meaning in tourism, which could help the formulation of a more discerning tourism policy, is advocated.
<h2 class="secHeading" id="section_abstract">Abstract</h2><p id="">Using Day of the Dead in the rural Mexican community of Huaquechula as an example, this paper analyzes how various levels of the state, in its roles as planner, marketer of cultural meanings, and arbiter of such practices, mediate between cultural tourism and local identity in a global context. It shows that the results have been met with opposition from some community groups. Although such opposition has caused the state to rethink its strategy, it remains intent on using its new program of cultural tourism as an alternative form of development in rural Mexico.
[19]
YangChangru.
On reconstruction of ethnic cultures: Taking Buyi minority in Guizhou as an example.
In fact, the evidence is more obvious since one of the settlements where the original coastalsettlers were driven after the 15th century is the hill-settlement of 05aykara (Bryer, 1980) whereone of the hayat houses in our sample 'A Y02rük (nomadic) settlement west of
[26]
Seo KW.
Topological paths in housing evolution.
London: Proceedings of 4th International Space Syntax Symposium, 2003.
Traditional courtyard houses that moulded the typical home life of Seoul for centuries have been replaced by modern apartment houses in the twentieth century. On the surface, morphologically, these two are so different and there seems to be no gradual process for the transformation. This study, however, reveals that there were continuous and deliberate efforts to re-adapt the traditional living into the new frame of space. The Space Syntax approach is used to measure the varying degree of change in each stage of the evolution. Here, the “space-activity” interaction is the main idea that enables us to see what underlies the process. As the old rooms take different names and functions in the new setting, they bring about the recombination of their activities, and when this occurs repeatedly at each stage, it leaves behind “topological paths” from which the direction of the evolution can be measured. Further examinations reveal that the space-activity interaction arises not only at each partitioned-space level, but also at the collective-space level that is closely related to the traditional concept of binary opposition, i.e., “elevated clean space” versus “earthen-floored dirty space”. Finally, it is concluded that even the domestic culture that is engaged in a fast and intense transformation process still tries to preserve, underneath its surface, its old genotypical value and in the course of change there exist conscious and unconscious efforts to direct it.
[27]
TokerU, TokerZ.
Family structure and spatial configuration in Turkish house form in Anatolia from late nineteenth century to late twentieth century.
Istanbul: Proceedings of 6th International Space Syntax Symposium, 2007.
ABSTRACT With a background that embraces various cultures and civilizations, the evolution of house form in Anatolia is a particularly interesting case. Previous research has examined configurational properties of Turkish houses during the Ottoman Empire period, with interpretations about relationships to social structure. Building on this research, this study examines the transformation of Turkish house and apartment plans from the late nineteenth century, early twentieth century and late twentieth century through analysis of spatial configurations. Observed transformations in spatial configuration in these three periods are interpreted through their relationships to shifts in family structure represented by household compositions and women's status. House plans in these three periods were analyzed utilizing space syntax methods. Since the "sofa" (hall), as a central living space, has always been an integral part of Turkish family structure, and since the kitchen has been a woman's space, their transformations were emphasized. Family structures were examined through the changes in women's employment status and education level, in addition to household types and size in all periods. When house plans from these periods were compared, findings revealed that the transformations in spatial configuration were parallel to shifts in family structures. Results of the study about spatial configuration — family structure relationships were stimulating for further research into accommodating contemporary household needs in current housing practices.
[28]
CilE.
Space, practice, memory: The transformations of the houses in Kula, a town in Anatolia.
Istanbul: Proceedings of 6th International Space Syntax Symposium, 2007.
[29]
VaughanL.
Book Review: Mimi Levi Lipis (2011), Symbolic houses in Judaism: How objects and metaphors construct hybrid places of belonging.
ABSTRACT Three arguments are made based on the analysis of science exhibitions. First, sufficiently refined techniques of spatial analysis allow us to model the impact of layout upon visitors' paths, even in moderately sized open plans which allow almost random patterns of movement and relatively unobstructed visibility. Second, newly developed or adapted techniques of analysis allow us to make a transition from modeling the mechanics of spatial movement (the way in which movement is affected by the distribution of obstacles and boundaries), to modeling the manner in which movement might register additional aspects of visual information. Third, the advantages of such purely spatial modes of analysis extend into providing us with a sharper understanding of some of the pragmatic constrains within which exhibition content is conceived and designed.
[32]
HansonJ.
Presentiment, contrast and ambiguity in fictional space: The London novels of Charles Dickens and Peter Ackroyd.
Data provided are for informational purposes only. Although carefully collected, accuracy cannot be guaranteed. The impact factor represents a rough estimation of the journal's impact factor and does not reflect the actual current impact factor. Publisher conditions are provided by RoMEO. Differing provisions from the publisher's actual policy or licence agreement may be applicable.
[33]
LongYing, ShenZhenjiang, MaoQizhiet al.
Form scenario analysis using constrained cellular automata.
DuanJin, GongKai, ChenXiaodong, et al.Space Research 1: World Heritage Xidi Ancient Village Spatial Resolution. Nangjing: Southeast University Press, 2006.
Hillier B. YangTao, WangJiaojing, Zhang Ji (trans.)Space is the Machine: A Configurational Theory of Architecture. 3rd ed. Beijing: China Architecture & Building Press, 2008.
... 1899年,O Schlüter发表的著名论文《城镇平面布局》,标志着城市形态学作为一门学科而诞生.自此以后,城市形态学形成了三大主要流派:英国Conzen学派,意大利Muratori-Caniggia学派和法国类型形态学[22].1984年城市形态学中出现了新的理论与分析方法—空间句法,该理论主要代表人物为B Hillier和J Hanson[23].其中,J Hanson从其研究之初就开始关注特定类型的建筑[24],紧随其后的大量工作使得特定类型建筑的研究在空间句法中占有非常重要的地位.其中关于家庭空间(house)的分析占据主导位置[25-29],研究不仅关注了家庭空间的空间逻辑及空间演变,也分析了房屋建造决策者对空间的影响等.此外,在特定类型建筑的研究中,对办公室[30]、博物馆[31]、宗教建筑[29]等也给予了分析,一方面探讨了空间组构问题,另一方面也对其社会逻辑(主要是功能)是如何影响空间组构的论题进行了解答.除此之外,还对精神病院③(③ De Syllas J. Domestic asylum: A study of 11 local authority hostels for mentally handicapped people. Brasilia: Proceedings of 2nd International Space Syntax Symposium, 1999.)、福利院④(④ De Arruda Campos M B, Lemlij M, Manning S. The role of the building layout in the delivery of social work services. Istanbul: Proceedings of 6th International Space Syntax Symposium, 2007.)、文学空间[32]等进行了阐释.在西方现有文献中,对特定建筑类型的关注主要集中在现代建筑方面,但对特定文化背景下出现的特定传统建筑类型的研究却相对匮乏.空间句法在私人领域建筑空间研究中强调渗透与隔离性,探讨了空间与人们日常行为模式及社会文化背景是如何衔接的,为中国文化背景下产生的家族空间、家空间研究提供了新的思路;在公共性建筑空间中强调引导与暗示性,探讨了空间组构与功能之间的关系,以满足广泛服务对象的需求.空间句法虽一直致力于探寻空间与社会文化之关系,但仍过多关注形态自身的话题,而在其与空间及空间意义、社会文化等关系的探讨上仍相对薄弱.反观国内,城市形态学更多地集中于中、宏观层面的研究[33-35].对于村落层面,主要关注村落聚居整体形态演变的驱动机制,对村落特定物质形态要素的分析比较少[36-38].对特定类型建筑空间,尤其是探讨传统建筑空间及其背后社会逻辑的文献在国内并不多见[39].对快速城市化进程中特定类型传统建筑的空间逻辑及其背后社会逻辑的研究则更显匮乏.祠堂是中国传统宗族文化作用下的空间产物,是中国传统建筑类型的典型代表之一,在快速城市化的进程中,祠堂空间逻辑的重构正映射出了中国传统宗族文化的重构. ...
... 1899年,O Schlüter发表的著名论文《城镇平面布局》,标志着城市形态学作为一门学科而诞生.自此以后,城市形态学形成了三大主要流派:英国Conzen学派,意大利Muratori-Caniggia学派和法国类型形态学[22].1984年城市形态学中出现了新的理论与分析方法—空间句法,该理论主要代表人物为B Hillier和J Hanson[23].其中,J Hanson从其研究之初就开始关注特定类型的建筑[24],紧随其后的大量工作使得特定类型建筑的研究在空间句法中占有非常重要的地位.其中关于家庭空间(house)的分析占据主导位置[25-29],研究不仅关注了家庭空间的空间逻辑及空间演变,也分析了房屋建造决策者对空间的影响等.此外,在特定类型建筑的研究中,对办公室[30]、博物馆[31]、宗教建筑[29]等也给予了分析,一方面探讨了空间组构问题,另一方面也对其社会逻辑(主要是功能)是如何影响空间组构的论题进行了解答.除此之外,还对精神病院③(③ De Syllas J. Domestic asylum: A study of 11 local authority hostels for mentally handicapped people. Brasilia: Proceedings of 2nd International Space Syntax Symposium, 1999.)、福利院④(④ De Arruda Campos M B, Lemlij M, Manning S. The role of the building layout in the delivery of social work services. Istanbul: Proceedings of 6th International Space Syntax Symposium, 2007.)、文学空间[32]等进行了阐释.在西方现有文献中,对特定建筑类型的关注主要集中在现代建筑方面,但对特定文化背景下出现的特定传统建筑类型的研究却相对匮乏.空间句法在私人领域建筑空间研究中强调渗透与隔离性,探讨了空间与人们日常行为模式及社会文化背景是如何衔接的,为中国文化背景下产生的家族空间、家空间研究提供了新的思路;在公共性建筑空间中强调引导与暗示性,探讨了空间组构与功能之间的关系,以满足广泛服务对象的需求.空间句法虽一直致力于探寻空间与社会文化之关系,但仍过多关注形态自身的话题,而在其与空间及空间意义、社会文化等关系的探讨上仍相对薄弱.反观国内,城市形态学更多地集中于中、宏观层面的研究[33-35].对于村落层面,主要关注村落聚居整体形态演变的驱动机制,对村落特定物质形态要素的分析比较少[36-38].对特定类型建筑空间,尤其是探讨传统建筑空间及其背后社会逻辑的文献在国内并不多见[39].对快速城市化进程中特定类型传统建筑的空间逻辑及其背后社会逻辑的研究则更显匮乏.祠堂是中国传统宗族文化作用下的空间产物,是中国传统建筑类型的典型代表之一,在快速城市化的进程中,祠堂空间逻辑的重构正映射出了中国传统宗族文化的重构. ...
... 1899年,O Schlüter发表的著名论文《城镇平面布局》,标志着城市形态学作为一门学科而诞生.自此以后,城市形态学形成了三大主要流派:英国Conzen学派,意大利Muratori-Caniggia学派和法国类型形态学[22].1984年城市形态学中出现了新的理论与分析方法—空间句法,该理论主要代表人物为B Hillier和J Hanson[23].其中,J Hanson从其研究之初就开始关注特定类型的建筑[24],紧随其后的大量工作使得特定类型建筑的研究在空间句法中占有非常重要的地位.其中关于家庭空间(house)的分析占据主导位置[25-29],研究不仅关注了家庭空间的空间逻辑及空间演变,也分析了房屋建造决策者对空间的影响等.此外,在特定类型建筑的研究中,对办公室[30]、博物馆[31]、宗教建筑[29]等也给予了分析,一方面探讨了空间组构问题,另一方面也对其社会逻辑(主要是功能)是如何影响空间组构的论题进行了解答.除此之外,还对精神病院③(③ De Syllas J. Domestic asylum: A study of 11 local authority hostels for mentally handicapped people. Brasilia: Proceedings of 2nd International Space Syntax Symposium, 1999.)、福利院④(④ De Arruda Campos M B, Lemlij M, Manning S. The role of the building layout in the delivery of social work services. Istanbul: Proceedings of 6th International Space Syntax Symposium, 2007.)、文学空间[32]等进行了阐释.在西方现有文献中,对特定建筑类型的关注主要集中在现代建筑方面,但对特定文化背景下出现的特定传统建筑类型的研究却相对匮乏.空间句法在私人领域建筑空间研究中强调渗透与隔离性,探讨了空间与人们日常行为模式及社会文化背景是如何衔接的,为中国文化背景下产生的家族空间、家空间研究提供了新的思路;在公共性建筑空间中强调引导与暗示性,探讨了空间组构与功能之间的关系,以满足广泛服务对象的需求.空间句法虽一直致力于探寻空间与社会文化之关系,但仍过多关注形态自身的话题,而在其与空间及空间意义、社会文化等关系的探讨上仍相对薄弱.反观国内,城市形态学更多地集中于中、宏观层面的研究[33-35].对于村落层面,主要关注村落聚居整体形态演变的驱动机制,对村落特定物质形态要素的分析比较少[36-38].对特定类型建筑空间,尤其是探讨传统建筑空间及其背后社会逻辑的文献在国内并不多见[39].对快速城市化进程中特定类型传统建筑的空间逻辑及其背后社会逻辑的研究则更显匮乏.祠堂是中国传统宗族文化作用下的空间产物,是中国传统建筑类型的典型代表之一,在快速城市化的进程中,祠堂空间逻辑的重构正映射出了中国传统宗族文化的重构. ...
国外城市形态学研究的兴起与发展
1
2008
... 1899年,O Schlüter发表的著名论文《城镇平面布局》,标志着城市形态学作为一门学科而诞生.自此以后,城市形态学形成了三大主要流派:英国Conzen学派,意大利Muratori-Caniggia学派和法国类型形态学[22].1984年城市形态学中出现了新的理论与分析方法—空间句法,该理论主要代表人物为B Hillier和J Hanson[23].其中,J Hanson从其研究之初就开始关注特定类型的建筑[24],紧随其后的大量工作使得特定类型建筑的研究在空间句法中占有非常重要的地位.其中关于家庭空间(house)的分析占据主导位置[25-29],研究不仅关注了家庭空间的空间逻辑及空间演变,也分析了房屋建造决策者对空间的影响等.此外,在特定类型建筑的研究中,对办公室[30]、博物馆[31]、宗教建筑[29]等也给予了分析,一方面探讨了空间组构问题,另一方面也对其社会逻辑(主要是功能)是如何影响空间组构的论题进行了解答.除此之外,还对精神病院③(③ De Syllas J. Domestic asylum: A study of 11 local authority hostels for mentally handicapped people. Brasilia: Proceedings of 2nd International Space Syntax Symposium, 1999.)、福利院④(④ De Arruda Campos M B, Lemlij M, Manning S. The role of the building layout in the delivery of social work services. Istanbul: Proceedings of 6th International Space Syntax Symposium, 2007.)、文学空间[32]等进行了阐释.在西方现有文献中,对特定建筑类型的关注主要集中在现代建筑方面,但对特定文化背景下出现的特定传统建筑类型的研究却相对匮乏.空间句法在私人领域建筑空间研究中强调渗透与隔离性,探讨了空间与人们日常行为模式及社会文化背景是如何衔接的,为中国文化背景下产生的家族空间、家空间研究提供了新的思路;在公共性建筑空间中强调引导与暗示性,探讨了空间组构与功能之间的关系,以满足广泛服务对象的需求.空间句法虽一直致力于探寻空间与社会文化之关系,但仍过多关注形态自身的话题,而在其与空间及空间意义、社会文化等关系的探讨上仍相对薄弱.反观国内,城市形态学更多地集中于中、宏观层面的研究[33-35].对于村落层面,主要关注村落聚居整体形态演变的驱动机制,对村落特定物质形态要素的分析比较少[36-38].对特定类型建筑空间,尤其是探讨传统建筑空间及其背后社会逻辑的文献在国内并不多见[39].对快速城市化进程中特定类型传统建筑的空间逻辑及其背后社会逻辑的研究则更显匮乏.祠堂是中国传统宗族文化作用下的空间产物,是中国传统建筑类型的典型代表之一,在快速城市化的进程中,祠堂空间逻辑的重构正映射出了中国传统宗族文化的重构. ...
1
1998
... 1899年,O Schlüter发表的著名论文《城镇平面布局》,标志着城市形态学作为一门学科而诞生.自此以后,城市形态学形成了三大主要流派:英国Conzen学派,意大利Muratori-Caniggia学派和法国类型形态学[22].1984年城市形态学中出现了新的理论与分析方法—空间句法,该理论主要代表人物为B Hillier和J Hanson[23].其中,J Hanson从其研究之初就开始关注特定类型的建筑[24],紧随其后的大量工作使得特定类型建筑的研究在空间句法中占有非常重要的地位.其中关于家庭空间(house)的分析占据主导位置[25-29],研究不仅关注了家庭空间的空间逻辑及空间演变,也分析了房屋建造决策者对空间的影响等.此外,在特定类型建筑的研究中,对办公室[30]、博物馆[31]、宗教建筑[29]等也给予了分析,一方面探讨了空间组构问题,另一方面也对其社会逻辑(主要是功能)是如何影响空间组构的论题进行了解答.除此之外,还对精神病院③(③ De Syllas J. Domestic asylum: A study of 11 local authority hostels for mentally handicapped people. Brasilia: Proceedings of 2nd International Space Syntax Symposium, 1999.)、福利院④(④ De Arruda Campos M B, Lemlij M, Manning S. The role of the building layout in the delivery of social work services. Istanbul: Proceedings of 6th International Space Syntax Symposium, 2007.)、文学空间[32]等进行了阐释.在西方现有文献中,对特定建筑类型的关注主要集中在现代建筑方面,但对特定文化背景下出现的特定传统建筑类型的研究却相对匮乏.空间句法在私人领域建筑空间研究中强调渗透与隔离性,探讨了空间与人们日常行为模式及社会文化背景是如何衔接的,为中国文化背景下产生的家族空间、家空间研究提供了新的思路;在公共性建筑空间中强调引导与暗示性,探讨了空间组构与功能之间的关系,以满足广泛服务对象的需求.空间句法虽一直致力于探寻空间与社会文化之关系,但仍过多关注形态自身的话题,而在其与空间及空间意义、社会文化等关系的探讨上仍相对薄弱.反观国内,城市形态学更多地集中于中、宏观层面的研究[33-35].对于村落层面,主要关注村落聚居整体形态演变的驱动机制,对村落特定物质形态要素的分析比较少[36-38].对特定类型建筑空间,尤其是探讨传统建筑空间及其背后社会逻辑的文献在国内并不多见[39].对快速城市化进程中特定类型传统建筑的空间逻辑及其背后社会逻辑的研究则更显匮乏.祠堂是中国传统宗族文化作用下的空间产物,是中国传统建筑类型的典型代表之一,在快速城市化的进程中,祠堂空间逻辑的重构正映射出了中国传统宗族文化的重构. ...
Spatial themes among the traditional houses of Turkey.
1
1999
... 1899年,O Schlüter发表的著名论文《城镇平面布局》,标志着城市形态学作为一门学科而诞生.自此以后,城市形态学形成了三大主要流派:英国Conzen学派,意大利Muratori-Caniggia学派和法国类型形态学[22].1984年城市形态学中出现了新的理论与分析方法—空间句法,该理论主要代表人物为B Hillier和J Hanson[23].其中,J Hanson从其研究之初就开始关注特定类型的建筑[24],紧随其后的大量工作使得特定类型建筑的研究在空间句法中占有非常重要的地位.其中关于家庭空间(house)的分析占据主导位置[25-29],研究不仅关注了家庭空间的空间逻辑及空间演变,也分析了房屋建造决策者对空间的影响等.此外,在特定类型建筑的研究中,对办公室[30]、博物馆[31]、宗教建筑[29]等也给予了分析,一方面探讨了空间组构问题,另一方面也对其社会逻辑(主要是功能)是如何影响空间组构的论题进行了解答.除此之外,还对精神病院③(③ De Syllas J. Domestic asylum: A study of 11 local authority hostels for mentally handicapped people. Brasilia: Proceedings of 2nd International Space Syntax Symposium, 1999.)、福利院④(④ De Arruda Campos M B, Lemlij M, Manning S. The role of the building layout in the delivery of social work services. Istanbul: Proceedings of 6th International Space Syntax Symposium, 2007.)、文学空间[32]等进行了阐释.在西方现有文献中,对特定建筑类型的关注主要集中在现代建筑方面,但对特定文化背景下出现的特定传统建筑类型的研究却相对匮乏.空间句法在私人领域建筑空间研究中强调渗透与隔离性,探讨了空间与人们日常行为模式及社会文化背景是如何衔接的,为中国文化背景下产生的家族空间、家空间研究提供了新的思路;在公共性建筑空间中强调引导与暗示性,探讨了空间组构与功能之间的关系,以满足广泛服务对象的需求.空间句法虽一直致力于探寻空间与社会文化之关系,但仍过多关注形态自身的话题,而在其与空间及空间意义、社会文化等关系的探讨上仍相对薄弱.反观国内,城市形态学更多地集中于中、宏观层面的研究[33-35].对于村落层面,主要关注村落聚居整体形态演变的驱动机制,对村落特定物质形态要素的分析比较少[36-38].对特定类型建筑空间,尤其是探讨传统建筑空间及其背后社会逻辑的文献在国内并不多见[39].对快速城市化进程中特定类型传统建筑的空间逻辑及其背后社会逻辑的研究则更显匮乏.祠堂是中国传统宗族文化作用下的空间产物,是中国传统建筑类型的典型代表之一,在快速城市化的进程中,祠堂空间逻辑的重构正映射出了中国传统宗族文化的重构. ...
Topological paths in housing evolution.
0
2003
Family structure and spatial configuration in Turkish house form in Anatolia from late nineteenth century to late twentieth century.
0
2007
Space, practice, memory: The transformations of the houses in Kula, a town in Anatolia.
0
2007
Book Review: Mimi Levi Lipis (2011), Symbolic houses in Judaism: How objects and metaphors construct hybrid places of belonging.
2
2012
... 1899年,O Schlüter发表的著名论文《城镇平面布局》,标志着城市形态学作为一门学科而诞生.自此以后,城市形态学形成了三大主要流派:英国Conzen学派,意大利Muratori-Caniggia学派和法国类型形态学[22].1984年城市形态学中出现了新的理论与分析方法—空间句法,该理论主要代表人物为B Hillier和J Hanson[23].其中,J Hanson从其研究之初就开始关注特定类型的建筑[24],紧随其后的大量工作使得特定类型建筑的研究在空间句法中占有非常重要的地位.其中关于家庭空间(house)的分析占据主导位置[25-29],研究不仅关注了家庭空间的空间逻辑及空间演变,也分析了房屋建造决策者对空间的影响等.此外,在特定类型建筑的研究中,对办公室[30]、博物馆[31]、宗教建筑[29]等也给予了分析,一方面探讨了空间组构问题,另一方面也对其社会逻辑(主要是功能)是如何影响空间组构的论题进行了解答.除此之外,还对精神病院③(③ De Syllas J. Domestic asylum: A study of 11 local authority hostels for mentally handicapped people. Brasilia: Proceedings of 2nd International Space Syntax Symposium, 1999.)、福利院④(④ De Arruda Campos M B, Lemlij M, Manning S. The role of the building layout in the delivery of social work services. Istanbul: Proceedings of 6th International Space Syntax Symposium, 2007.)、文学空间[32]等进行了阐释.在西方现有文献中,对特定建筑类型的关注主要集中在现代建筑方面,但对特定文化背景下出现的特定传统建筑类型的研究却相对匮乏.空间句法在私人领域建筑空间研究中强调渗透与隔离性,探讨了空间与人们日常行为模式及社会文化背景是如何衔接的,为中国文化背景下产生的家族空间、家空间研究提供了新的思路;在公共性建筑空间中强调引导与暗示性,探讨了空间组构与功能之间的关系,以满足广泛服务对象的需求.空间句法虽一直致力于探寻空间与社会文化之关系,但仍过多关注形态自身的话题,而在其与空间及空间意义、社会文化等关系的探讨上仍相对薄弱.反观国内,城市形态学更多地集中于中、宏观层面的研究[33-35].对于村落层面,主要关注村落聚居整体形态演变的驱动机制,对村落特定物质形态要素的分析比较少[36-38].对特定类型建筑空间,尤其是探讨传统建筑空间及其背后社会逻辑的文献在国内并不多见[39].对快速城市化进程中特定类型传统建筑的空间逻辑及其背后社会逻辑的研究则更显匮乏.祠堂是中国传统宗族文化作用下的空间产物,是中国传统建筑类型的典型代表之一,在快速城市化的进程中,祠堂空间逻辑的重构正映射出了中国传统宗族文化的重构. ...
... [29]等也给予了分析,一方面探讨了空间组构问题,另一方面也对其社会逻辑(主要是功能)是如何影响空间组构的论题进行了解答.除此之外,还对精神病院③(③ De Syllas J. Domestic asylum: A study of 11 local authority hostels for mentally handicapped people. Brasilia: Proceedings of 2nd International Space Syntax Symposium, 1999.)、福利院④(④ De Arruda Campos M B, Lemlij M, Manning S. The role of the building layout in the delivery of social work services. Istanbul: Proceedings of 6th International Space Syntax Symposium, 2007.)、文学空间[32]等进行了阐释.在西方现有文献中,对特定建筑类型的关注主要集中在现代建筑方面,但对特定文化背景下出现的特定传统建筑类型的研究却相对匮乏.空间句法在私人领域建筑空间研究中强调渗透与隔离性,探讨了空间与人们日常行为模式及社会文化背景是如何衔接的,为中国文化背景下产生的家族空间、家空间研究提供了新的思路;在公共性建筑空间中强调引导与暗示性,探讨了空间组构与功能之间的关系,以满足广泛服务对象的需求.空间句法虽一直致力于探寻空间与社会文化之关系,但仍过多关注形态自身的话题,而在其与空间及空间意义、社会文化等关系的探讨上仍相对薄弱.反观国内,城市形态学更多地集中于中、宏观层面的研究[33-35].对于村落层面,主要关注村落聚居整体形态演变的驱动机制,对村落特定物质形态要素的分析比较少[36-38].对特定类型建筑空间,尤其是探讨传统建筑空间及其背后社会逻辑的文献在国内并不多见[39].对快速城市化进程中特定类型传统建筑的空间逻辑及其背后社会逻辑的研究则更显匮乏.祠堂是中国传统宗族文化作用下的空间产物,是中国传统建筑类型的典型代表之一,在快速城市化的进程中,祠堂空间逻辑的重构正映射出了中国传统宗族文化的重构. ...
Pre and post occupancy evaluations in workplace environments theoretical reflections and practical implications.
1
2010
... 1899年,O Schlüter发表的著名论文《城镇平面布局》,标志着城市形态学作为一门学科而诞生.自此以后,城市形态学形成了三大主要流派:英国Conzen学派,意大利Muratori-Caniggia学派和法国类型形态学[22].1984年城市形态学中出现了新的理论与分析方法—空间句法,该理论主要代表人物为B Hillier和J Hanson[23].其中,J Hanson从其研究之初就开始关注特定类型的建筑[24],紧随其后的大量工作使得特定类型建筑的研究在空间句法中占有非常重要的地位.其中关于家庭空间(house)的分析占据主导位置[25-29],研究不仅关注了家庭空间的空间逻辑及空间演变,也分析了房屋建造决策者对空间的影响等.此外,在特定类型建筑的研究中,对办公室[30]、博物馆[31]、宗教建筑[29]等也给予了分析,一方面探讨了空间组构问题,另一方面也对其社会逻辑(主要是功能)是如何影响空间组构的论题进行了解答.除此之外,还对精神病院③(③ De Syllas J. Domestic asylum: A study of 11 local authority hostels for mentally handicapped people. Brasilia: Proceedings of 2nd International Space Syntax Symposium, 1999.)、福利院④(④ De Arruda Campos M B, Lemlij M, Manning S. The role of the building layout in the delivery of social work services. Istanbul: Proceedings of 6th International Space Syntax Symposium, 2007.)、文学空间[32]等进行了阐释.在西方现有文献中,对特定建筑类型的关注主要集中在现代建筑方面,但对特定文化背景下出现的特定传统建筑类型的研究却相对匮乏.空间句法在私人领域建筑空间研究中强调渗透与隔离性,探讨了空间与人们日常行为模式及社会文化背景是如何衔接的,为中国文化背景下产生的家族空间、家空间研究提供了新的思路;在公共性建筑空间中强调引导与暗示性,探讨了空间组构与功能之间的关系,以满足广泛服务对象的需求.空间句法虽一直致力于探寻空间与社会文化之关系,但仍过多关注形态自身的话题,而在其与空间及空间意义、社会文化等关系的探讨上仍相对薄弱.反观国内,城市形态学更多地集中于中、宏观层面的研究[33-35].对于村落层面,主要关注村落聚居整体形态演变的驱动机制,对村落特定物质形态要素的分析比较少[36-38].对特定类型建筑空间,尤其是探讨传统建筑空间及其背后社会逻辑的文献在国内并不多见[39].对快速城市化进程中特定类型传统建筑的空间逻辑及其背后社会逻辑的研究则更显匮乏.祠堂是中国传统宗族文化作用下的空间产物,是中国传统建筑类型的典型代表之一,在快速城市化的进程中,祠堂空间逻辑的重构正映射出了中国传统宗族文化的重构. ...
Path, theme and narrative in open plan exhibition settings.
1
2003
... 1899年,O Schlüter发表的著名论文《城镇平面布局》,标志着城市形态学作为一门学科而诞生.自此以后,城市形态学形成了三大主要流派:英国Conzen学派,意大利Muratori-Caniggia学派和法国类型形态学[22].1984年城市形态学中出现了新的理论与分析方法—空间句法,该理论主要代表人物为B Hillier和J Hanson[23].其中,J Hanson从其研究之初就开始关注特定类型的建筑[24],紧随其后的大量工作使得特定类型建筑的研究在空间句法中占有非常重要的地位.其中关于家庭空间(house)的分析占据主导位置[25-29],研究不仅关注了家庭空间的空间逻辑及空间演变,也分析了房屋建造决策者对空间的影响等.此外,在特定类型建筑的研究中,对办公室[30]、博物馆[31]、宗教建筑[29]等也给予了分析,一方面探讨了空间组构问题,另一方面也对其社会逻辑(主要是功能)是如何影响空间组构的论题进行了解答.除此之外,还对精神病院③(③ De Syllas J. Domestic asylum: A study of 11 local authority hostels for mentally handicapped people. Brasilia: Proceedings of 2nd International Space Syntax Symposium, 1999.)、福利院④(④ De Arruda Campos M B, Lemlij M, Manning S. The role of the building layout in the delivery of social work services. Istanbul: Proceedings of 6th International Space Syntax Symposium, 2007.)、文学空间[32]等进行了阐释.在西方现有文献中,对特定建筑类型的关注主要集中在现代建筑方面,但对特定文化背景下出现的特定传统建筑类型的研究却相对匮乏.空间句法在私人领域建筑空间研究中强调渗透与隔离性,探讨了空间与人们日常行为模式及社会文化背景是如何衔接的,为中国文化背景下产生的家族空间、家空间研究提供了新的思路;在公共性建筑空间中强调引导与暗示性,探讨了空间组构与功能之间的关系,以满足广泛服务对象的需求.空间句法虽一直致力于探寻空间与社会文化之关系,但仍过多关注形态自身的话题,而在其与空间及空间意义、社会文化等关系的探讨上仍相对薄弱.反观国内,城市形态学更多地集中于中、宏观层面的研究[33-35].对于村落层面,主要关注村落聚居整体形态演变的驱动机制,对村落特定物质形态要素的分析比较少[36-38].对特定类型建筑空间,尤其是探讨传统建筑空间及其背后社会逻辑的文献在国内并不多见[39].对快速城市化进程中特定类型传统建筑的空间逻辑及其背后社会逻辑的研究则更显匮乏.祠堂是中国传统宗族文化作用下的空间产物,是中国传统建筑类型的典型代表之一,在快速城市化的进程中,祠堂空间逻辑的重构正映射出了中国传统宗族文化的重构. ...
Presentiment, contrast and ambiguity in fictional space: The London novels of Charles Dickens and Peter Ackroyd.
1
2012
... 1899年,O Schlüter发表的著名论文《城镇平面布局》,标志着城市形态学作为一门学科而诞生.自此以后,城市形态学形成了三大主要流派:英国Conzen学派,意大利Muratori-Caniggia学派和法国类型形态学[22].1984年城市形态学中出现了新的理论与分析方法—空间句法,该理论主要代表人物为B Hillier和J Hanson[23].其中,J Hanson从其研究之初就开始关注特定类型的建筑[24],紧随其后的大量工作使得特定类型建筑的研究在空间句法中占有非常重要的地位.其中关于家庭空间(house)的分析占据主导位置[25-29],研究不仅关注了家庭空间的空间逻辑及空间演变,也分析了房屋建造决策者对空间的影响等.此外,在特定类型建筑的研究中,对办公室[30]、博物馆[31]、宗教建筑[29]等也给予了分析,一方面探讨了空间组构问题,另一方面也对其社会逻辑(主要是功能)是如何影响空间组构的论题进行了解答.除此之外,还对精神病院③(③ De Syllas J. Domestic asylum: A study of 11 local authority hostels for mentally handicapped people. Brasilia: Proceedings of 2nd International Space Syntax Symposium, 1999.)、福利院④(④ De Arruda Campos M B, Lemlij M, Manning S. The role of the building layout in the delivery of social work services. Istanbul: Proceedings of 6th International Space Syntax Symposium, 2007.)、文学空间[32]等进行了阐释.在西方现有文献中,对特定建筑类型的关注主要集中在现代建筑方面,但对特定文化背景下出现的特定传统建筑类型的研究却相对匮乏.空间句法在私人领域建筑空间研究中强调渗透与隔离性,探讨了空间与人们日常行为模式及社会文化背景是如何衔接的,为中国文化背景下产生的家族空间、家空间研究提供了新的思路;在公共性建筑空间中强调引导与暗示性,探讨了空间组构与功能之间的关系,以满足广泛服务对象的需求.空间句法虽一直致力于探寻空间与社会文化之关系,但仍过多关注形态自身的话题,而在其与空间及空间意义、社会文化等关系的探讨上仍相对薄弱.反观国内,城市形态学更多地集中于中、宏观层面的研究[33-35].对于村落层面,主要关注村落聚居整体形态演变的驱动机制,对村落特定物质形态要素的分析比较少[36-38].对特定类型建筑空间,尤其是探讨传统建筑空间及其背后社会逻辑的文献在国内并不多见[39].对快速城市化进程中特定类型传统建筑的空间逻辑及其背后社会逻辑的研究则更显匮乏.祠堂是中国传统宗族文化作用下的空间产物,是中国传统建筑类型的典型代表之一,在快速城市化的进程中,祠堂空间逻辑的重构正映射出了中国传统宗族文化的重构. ...
基于约束性CA方法的北京城市形态情景分析
1
2010
... 1899年,O Schlüter发表的著名论文《城镇平面布局》,标志着城市形态学作为一门学科而诞生.自此以后,城市形态学形成了三大主要流派:英国Conzen学派,意大利Muratori-Caniggia学派和法国类型形态学[22].1984年城市形态学中出现了新的理论与分析方法—空间句法,该理论主要代表人物为B Hillier和J Hanson[23].其中,J Hanson从其研究之初就开始关注特定类型的建筑[24],紧随其后的大量工作使得特定类型建筑的研究在空间句法中占有非常重要的地位.其中关于家庭空间(house)的分析占据主导位置[25-29],研究不仅关注了家庭空间的空间逻辑及空间演变,也分析了房屋建造决策者对空间的影响等.此外,在特定类型建筑的研究中,对办公室[30]、博物馆[31]、宗教建筑[29]等也给予了分析,一方面探讨了空间组构问题,另一方面也对其社会逻辑(主要是功能)是如何影响空间组构的论题进行了解答.除此之外,还对精神病院③(③ De Syllas J. Domestic asylum: A study of 11 local authority hostels for mentally handicapped people. Brasilia: Proceedings of 2nd International Space Syntax Symposium, 1999.)、福利院④(④ De Arruda Campos M B, Lemlij M, Manning S. The role of the building layout in the delivery of social work services. Istanbul: Proceedings of 6th International Space Syntax Symposium, 2007.)、文学空间[32]等进行了阐释.在西方现有文献中,对特定建筑类型的关注主要集中在现代建筑方面,但对特定文化背景下出现的特定传统建筑类型的研究却相对匮乏.空间句法在私人领域建筑空间研究中强调渗透与隔离性,探讨了空间与人们日常行为模式及社会文化背景是如何衔接的,为中国文化背景下产生的家族空间、家空间研究提供了新的思路;在公共性建筑空间中强调引导与暗示性,探讨了空间组构与功能之间的关系,以满足广泛服务对象的需求.空间句法虽一直致力于探寻空间与社会文化之关系,但仍过多关注形态自身的话题,而在其与空间及空间意义、社会文化等关系的探讨上仍相对薄弱.反观国内,城市形态学更多地集中于中、宏观层面的研究[33-35].对于村落层面,主要关注村落聚居整体形态演变的驱动机制,对村落特定物质形态要素的分析比较少[36-38].对特定类型建筑空间,尤其是探讨传统建筑空间及其背后社会逻辑的文献在国内并不多见[39].对快速城市化进程中特定类型传统建筑的空间逻辑及其背后社会逻辑的研究则更显匮乏.祠堂是中国传统宗族文化作用下的空间产物,是中国传统建筑类型的典型代表之一,在快速城市化的进程中,祠堂空间逻辑的重构正映射出了中国传统宗族文化的重构. ...
基于约束性CA方法的北京城市形态情景分析
1
2010
... 1899年,O Schlüter发表的著名论文《城镇平面布局》,标志着城市形态学作为一门学科而诞生.自此以后,城市形态学形成了三大主要流派:英国Conzen学派,意大利Muratori-Caniggia学派和法国类型形态学[22].1984年城市形态学中出现了新的理论与分析方法—空间句法,该理论主要代表人物为B Hillier和J Hanson[23].其中,J Hanson从其研究之初就开始关注特定类型的建筑[24],紧随其后的大量工作使得特定类型建筑的研究在空间句法中占有非常重要的地位.其中关于家庭空间(house)的分析占据主导位置[25-29],研究不仅关注了家庭空间的空间逻辑及空间演变,也分析了房屋建造决策者对空间的影响等.此外,在特定类型建筑的研究中,对办公室[30]、博物馆[31]、宗教建筑[29]等也给予了分析,一方面探讨了空间组构问题,另一方面也对其社会逻辑(主要是功能)是如何影响空间组构的论题进行了解答.除此之外,还对精神病院③(③ De Syllas J. Domestic asylum: A study of 11 local authority hostels for mentally handicapped people. Brasilia: Proceedings of 2nd International Space Syntax Symposium, 1999.)、福利院④(④ De Arruda Campos M B, Lemlij M, Manning S. The role of the building layout in the delivery of social work services. Istanbul: Proceedings of 6th International Space Syntax Symposium, 2007.)、文学空间[32]等进行了阐释.在西方现有文献中,对特定建筑类型的关注主要集中在现代建筑方面,但对特定文化背景下出现的特定传统建筑类型的研究却相对匮乏.空间句法在私人领域建筑空间研究中强调渗透与隔离性,探讨了空间与人们日常行为模式及社会文化背景是如何衔接的,为中国文化背景下产生的家族空间、家空间研究提供了新的思路;在公共性建筑空间中强调引导与暗示性,探讨了空间组构与功能之间的关系,以满足广泛服务对象的需求.空间句法虽一直致力于探寻空间与社会文化之关系,但仍过多关注形态自身的话题,而在其与空间及空间意义、社会文化等关系的探讨上仍相对薄弱.反观国内,城市形态学更多地集中于中、宏观层面的研究[33-35].对于村落层面,主要关注村落聚居整体形态演变的驱动机制,对村落特定物质形态要素的分析比较少[36-38].对特定类型建筑空间,尤其是探讨传统建筑空间及其背后社会逻辑的文献在国内并不多见[39].对快速城市化进程中特定类型传统建筑的空间逻辑及其背后社会逻辑的研究则更显匮乏.祠堂是中国传统宗族文化作用下的空间产物,是中国传统建筑类型的典型代表之一,在快速城市化的进程中,祠堂空间逻辑的重构正映射出了中国传统宗族文化的重构. ...
长沙城市形态与用地类型的时空演化特征
0
2007
长沙城市形态与用地类型的时空演化特征
0
2007
城市空间结构的复杂性研究进展
1
2005
... 1899年,O Schlüter发表的著名论文《城镇平面布局》,标志着城市形态学作为一门学科而诞生.自此以后,城市形态学形成了三大主要流派:英国Conzen学派,意大利Muratori-Caniggia学派和法国类型形态学[22].1984年城市形态学中出现了新的理论与分析方法—空间句法,该理论主要代表人物为B Hillier和J Hanson[23].其中,J Hanson从其研究之初就开始关注特定类型的建筑[24],紧随其后的大量工作使得特定类型建筑的研究在空间句法中占有非常重要的地位.其中关于家庭空间(house)的分析占据主导位置[25-29],研究不仅关注了家庭空间的空间逻辑及空间演变,也分析了房屋建造决策者对空间的影响等.此外,在特定类型建筑的研究中,对办公室[30]、博物馆[31]、宗教建筑[29]等也给予了分析,一方面探讨了空间组构问题,另一方面也对其社会逻辑(主要是功能)是如何影响空间组构的论题进行了解答.除此之外,还对精神病院③(③ De Syllas J. Domestic asylum: A study of 11 local authority hostels for mentally handicapped people. Brasilia: Proceedings of 2nd International Space Syntax Symposium, 1999.)、福利院④(④ De Arruda Campos M B, Lemlij M, Manning S. The role of the building layout in the delivery of social work services. Istanbul: Proceedings of 6th International Space Syntax Symposium, 2007.)、文学空间[32]等进行了阐释.在西方现有文献中,对特定建筑类型的关注主要集中在现代建筑方面,但对特定文化背景下出现的特定传统建筑类型的研究却相对匮乏.空间句法在私人领域建筑空间研究中强调渗透与隔离性,探讨了空间与人们日常行为模式及社会文化背景是如何衔接的,为中国文化背景下产生的家族空间、家空间研究提供了新的思路;在公共性建筑空间中强调引导与暗示性,探讨了空间组构与功能之间的关系,以满足广泛服务对象的需求.空间句法虽一直致力于探寻空间与社会文化之关系,但仍过多关注形态自身的话题,而在其与空间及空间意义、社会文化等关系的探讨上仍相对薄弱.反观国内,城市形态学更多地集中于中、宏观层面的研究[33-35].对于村落层面,主要关注村落聚居整体形态演变的驱动机制,对村落特定物质形态要素的分析比较少[36-38].对特定类型建筑空间,尤其是探讨传统建筑空间及其背后社会逻辑的文献在国内并不多见[39].对快速城市化进程中特定类型传统建筑的空间逻辑及其背后社会逻辑的研究则更显匮乏.祠堂是中国传统宗族文化作用下的空间产物,是中国传统建筑类型的典型代表之一,在快速城市化的进程中,祠堂空间逻辑的重构正映射出了中国传统宗族文化的重构. ...
城市空间结构的复杂性研究进展
1
2005
... 1899年,O Schlüter发表的著名论文《城镇平面布局》,标志着城市形态学作为一门学科而诞生.自此以后,城市形态学形成了三大主要流派:英国Conzen学派,意大利Muratori-Caniggia学派和法国类型形态学[22].1984年城市形态学中出现了新的理论与分析方法—空间句法,该理论主要代表人物为B Hillier和J Hanson[23].其中,J Hanson从其研究之初就开始关注特定类型的建筑[24],紧随其后的大量工作使得特定类型建筑的研究在空间句法中占有非常重要的地位.其中关于家庭空间(house)的分析占据主导位置[25-29],研究不仅关注了家庭空间的空间逻辑及空间演变,也分析了房屋建造决策者对空间的影响等.此外,在特定类型建筑的研究中,对办公室[30]、博物馆[31]、宗教建筑[29]等也给予了分析,一方面探讨了空间组构问题,另一方面也对其社会逻辑(主要是功能)是如何影响空间组构的论题进行了解答.除此之外,还对精神病院③(③ De Syllas J. Domestic asylum: A study of 11 local authority hostels for mentally handicapped people. Brasilia: Proceedings of 2nd International Space Syntax Symposium, 1999.)、福利院④(④ De Arruda Campos M B, Lemlij M, Manning S. The role of the building layout in the delivery of social work services. Istanbul: Proceedings of 6th International Space Syntax Symposium, 2007.)、文学空间[32]等进行了阐释.在西方现有文献中,对特定建筑类型的关注主要集中在现代建筑方面,但对特定文化背景下出现的特定传统建筑类型的研究却相对匮乏.空间句法在私人领域建筑空间研究中强调渗透与隔离性,探讨了空间与人们日常行为模式及社会文化背景是如何衔接的,为中国文化背景下产生的家族空间、家空间研究提供了新的思路;在公共性建筑空间中强调引导与暗示性,探讨了空间组构与功能之间的关系,以满足广泛服务对象的需求.空间句法虽一直致力于探寻空间与社会文化之关系,但仍过多关注形态自身的话题,而在其与空间及空间意义、社会文化等关系的探讨上仍相对薄弱.反观国内,城市形态学更多地集中于中、宏观层面的研究[33-35].对于村落层面,主要关注村落聚居整体形态演变的驱动机制,对村落特定物质形态要素的分析比较少[36-38].对特定类型建筑空间,尤其是探讨传统建筑空间及其背后社会逻辑的文献在国内并不多见[39].对快速城市化进程中特定类型传统建筑的空间逻辑及其背后社会逻辑的研究则更显匮乏.祠堂是中国传统宗族文化作用下的空间产物,是中国传统建筑类型的典型代表之一,在快速城市化的进程中,祠堂空间逻辑的重构正映射出了中国传统宗族文化的重构. ...
1
2006
... 1899年,O Schlüter发表的著名论文《城镇平面布局》,标志着城市形态学作为一门学科而诞生.自此以后,城市形态学形成了三大主要流派:英国Conzen学派,意大利Muratori-Caniggia学派和法国类型形态学[22].1984年城市形态学中出现了新的理论与分析方法—空间句法,该理论主要代表人物为B Hillier和J Hanson[23].其中,J Hanson从其研究之初就开始关注特定类型的建筑[24],紧随其后的大量工作使得特定类型建筑的研究在空间句法中占有非常重要的地位.其中关于家庭空间(house)的分析占据主导位置[25-29],研究不仅关注了家庭空间的空间逻辑及空间演变,也分析了房屋建造决策者对空间的影响等.此外,在特定类型建筑的研究中,对办公室[30]、博物馆[31]、宗教建筑[29]等也给予了分析,一方面探讨了空间组构问题,另一方面也对其社会逻辑(主要是功能)是如何影响空间组构的论题进行了解答.除此之外,还对精神病院③(③ De Syllas J. Domestic asylum: A study of 11 local authority hostels for mentally handicapped people. Brasilia: Proceedings of 2nd International Space Syntax Symposium, 1999.)、福利院④(④ De Arruda Campos M B, Lemlij M, Manning S. The role of the building layout in the delivery of social work services. Istanbul: Proceedings of 6th International Space Syntax Symposium, 2007.)、文学空间[32]等进行了阐释.在西方现有文献中,对特定建筑类型的关注主要集中在现代建筑方面,但对特定文化背景下出现的特定传统建筑类型的研究却相对匮乏.空间句法在私人领域建筑空间研究中强调渗透与隔离性,探讨了空间与人们日常行为模式及社会文化背景是如何衔接的,为中国文化背景下产生的家族空间、家空间研究提供了新的思路;在公共性建筑空间中强调引导与暗示性,探讨了空间组构与功能之间的关系,以满足广泛服务对象的需求.空间句法虽一直致力于探寻空间与社会文化之关系,但仍过多关注形态自身的话题,而在其与空间及空间意义、社会文化等关系的探讨上仍相对薄弱.反观国内,城市形态学更多地集中于中、宏观层面的研究[33-35].对于村落层面,主要关注村落聚居整体形态演变的驱动机制,对村落特定物质形态要素的分析比较少[36-38].对特定类型建筑空间,尤其是探讨传统建筑空间及其背后社会逻辑的文献在国内并不多见[39].对快速城市化进程中特定类型传统建筑的空间逻辑及其背后社会逻辑的研究则更显匮乏.祠堂是中国传统宗族文化作用下的空间产物,是中国传统建筑类型的典型代表之一,在快速城市化的进程中,祠堂空间逻辑的重构正映射出了中国传统宗族文化的重构. ...
1
2006
... 1899年,O Schlüter发表的著名论文《城镇平面布局》,标志着城市形态学作为一门学科而诞生.自此以后,城市形态学形成了三大主要流派:英国Conzen学派,意大利Muratori-Caniggia学派和法国类型形态学[22].1984年城市形态学中出现了新的理论与分析方法—空间句法,该理论主要代表人物为B Hillier和J Hanson[23].其中,J Hanson从其研究之初就开始关注特定类型的建筑[24],紧随其后的大量工作使得特定类型建筑的研究在空间句法中占有非常重要的地位.其中关于家庭空间(house)的分析占据主导位置[25-29],研究不仅关注了家庭空间的空间逻辑及空间演变,也分析了房屋建造决策者对空间的影响等.此外,在特定类型建筑的研究中,对办公室[30]、博物馆[31]、宗教建筑[29]等也给予了分析,一方面探讨了空间组构问题,另一方面也对其社会逻辑(主要是功能)是如何影响空间组构的论题进行了解答.除此之外,还对精神病院③(③ De Syllas J. Domestic asylum: A study of 11 local authority hostels for mentally handicapped people. Brasilia: Proceedings of 2nd International Space Syntax Symposium, 1999.)、福利院④(④ De Arruda Campos M B, Lemlij M, Manning S. The role of the building layout in the delivery of social work services. Istanbul: Proceedings of 6th International Space Syntax Symposium, 2007.)、文学空间[32]等进行了阐释.在西方现有文献中,对特定建筑类型的关注主要集中在现代建筑方面,但对特定文化背景下出现的特定传统建筑类型的研究却相对匮乏.空间句法在私人领域建筑空间研究中强调渗透与隔离性,探讨了空间与人们日常行为模式及社会文化背景是如何衔接的,为中国文化背景下产生的家族空间、家空间研究提供了新的思路;在公共性建筑空间中强调引导与暗示性,探讨了空间组构与功能之间的关系,以满足广泛服务对象的需求.空间句法虽一直致力于探寻空间与社会文化之关系,但仍过多关注形态自身的话题,而在其与空间及空间意义、社会文化等关系的探讨上仍相对薄弱.反观国内,城市形态学更多地集中于中、宏观层面的研究[33-35].对于村落层面,主要关注村落聚居整体形态演变的驱动机制,对村落特定物质形态要素的分析比较少[36-38].对特定类型建筑空间,尤其是探讨传统建筑空间及其背后社会逻辑的文献在国内并不多见[39].对快速城市化进程中特定类型传统建筑的空间逻辑及其背后社会逻辑的研究则更显匮乏.祠堂是中国传统宗族文化作用下的空间产物,是中国传统建筑类型的典型代表之一,在快速城市化的进程中,祠堂空间逻辑的重构正映射出了中国传统宗族文化的重构. ...
中国农村聚居演变的驱动机制及态势分析
0
2011
中国农村聚居演变的驱动机制及态势分析
0
2011
东北地区古代城市空间形态发展背景与进程
1
2010
... 1899年,O Schlüter发表的著名论文《城镇平面布局》,标志着城市形态学作为一门学科而诞生.自此以后,城市形态学形成了三大主要流派:英国Conzen学派,意大利Muratori-Caniggia学派和法国类型形态学[22].1984年城市形态学中出现了新的理论与分析方法—空间句法,该理论主要代表人物为B Hillier和J Hanson[23].其中,J Hanson从其研究之初就开始关注特定类型的建筑[24],紧随其后的大量工作使得特定类型建筑的研究在空间句法中占有非常重要的地位.其中关于家庭空间(house)的分析占据主导位置[25-29],研究不仅关注了家庭空间的空间逻辑及空间演变,也分析了房屋建造决策者对空间的影响等.此外,在特定类型建筑的研究中,对办公室[30]、博物馆[31]、宗教建筑[29]等也给予了分析,一方面探讨了空间组构问题,另一方面也对其社会逻辑(主要是功能)是如何影响空间组构的论题进行了解答.除此之外,还对精神病院③(③ De Syllas J. Domestic asylum: A study of 11 local authority hostels for mentally handicapped people. Brasilia: Proceedings of 2nd International Space Syntax Symposium, 1999.)、福利院④(④ De Arruda Campos M B, Lemlij M, Manning S. The role of the building layout in the delivery of social work services. Istanbul: Proceedings of 6th International Space Syntax Symposium, 2007.)、文学空间[32]等进行了阐释.在西方现有文献中,对特定建筑类型的关注主要集中在现代建筑方面,但对特定文化背景下出现的特定传统建筑类型的研究却相对匮乏.空间句法在私人领域建筑空间研究中强调渗透与隔离性,探讨了空间与人们日常行为模式及社会文化背景是如何衔接的,为中国文化背景下产生的家族空间、家空间研究提供了新的思路;在公共性建筑空间中强调引导与暗示性,探讨了空间组构与功能之间的关系,以满足广泛服务对象的需求.空间句法虽一直致力于探寻空间与社会文化之关系,但仍过多关注形态自身的话题,而在其与空间及空间意义、社会文化等关系的探讨上仍相对薄弱.反观国内,城市形态学更多地集中于中、宏观层面的研究[33-35].对于村落层面,主要关注村落聚居整体形态演变的驱动机制,对村落特定物质形态要素的分析比较少[36-38].对特定类型建筑空间,尤其是探讨传统建筑空间及其背后社会逻辑的文献在国内并不多见[39].对快速城市化进程中特定类型传统建筑的空间逻辑及其背后社会逻辑的研究则更显匮乏.祠堂是中国传统宗族文化作用下的空间产物,是中国传统建筑类型的典型代表之一,在快速城市化的进程中,祠堂空间逻辑的重构正映射出了中国传统宗族文化的重构. ...
东北地区古代城市空间形态发展背景与进程
1
2010
... 1899年,O Schlüter发表的著名论文《城镇平面布局》,标志着城市形态学作为一门学科而诞生.自此以后,城市形态学形成了三大主要流派:英国Conzen学派,意大利Muratori-Caniggia学派和法国类型形态学[22].1984年城市形态学中出现了新的理论与分析方法—空间句法,该理论主要代表人物为B Hillier和J Hanson[23].其中,J Hanson从其研究之初就开始关注特定类型的建筑[24],紧随其后的大量工作使得特定类型建筑的研究在空间句法中占有非常重要的地位.其中关于家庭空间(house)的分析占据主导位置[25-29],研究不仅关注了家庭空间的空间逻辑及空间演变,也分析了房屋建造决策者对空间的影响等.此外,在特定类型建筑的研究中,对办公室[30]、博物馆[31]、宗教建筑[29]等也给予了分析,一方面探讨了空间组构问题,另一方面也对其社会逻辑(主要是功能)是如何影响空间组构的论题进行了解答.除此之外,还对精神病院③(③ De Syllas J. Domestic asylum: A study of 11 local authority hostels for mentally handicapped people. Brasilia: Proceedings of 2nd International Space Syntax Symposium, 1999.)、福利院④(④ De Arruda Campos M B, Lemlij M, Manning S. The role of the building layout in the delivery of social work services. Istanbul: Proceedings of 6th International Space Syntax Symposium, 2007.)、文学空间[32]等进行了阐释.在西方现有文献中,对特定建筑类型的关注主要集中在现代建筑方面,但对特定文化背景下出现的特定传统建筑类型的研究却相对匮乏.空间句法在私人领域建筑空间研究中强调渗透与隔离性,探讨了空间与人们日常行为模式及社会文化背景是如何衔接的,为中国文化背景下产生的家族空间、家空间研究提供了新的思路;在公共性建筑空间中强调引导与暗示性,探讨了空间组构与功能之间的关系,以满足广泛服务对象的需求.空间句法虽一直致力于探寻空间与社会文化之关系,但仍过多关注形态自身的话题,而在其与空间及空间意义、社会文化等关系的探讨上仍相对薄弱.反观国内,城市形态学更多地集中于中、宏观层面的研究[33-35].对于村落层面,主要关注村落聚居整体形态演变的驱动机制,对村落特定物质形态要素的分析比较少[36-38].对特定类型建筑空间,尤其是探讨传统建筑空间及其背后社会逻辑的文献在国内并不多见[39].对快速城市化进程中特定类型传统建筑的空间逻辑及其背后社会逻辑的研究则更显匮乏.祠堂是中国传统宗族文化作用下的空间产物,是中国传统建筑类型的典型代表之一,在快速城市化的进程中,祠堂空间逻辑的重构正映射出了中国传统宗族文化的重构. ...
基于空间句法的商品交易市场空间结构: 以义乌国际商贸城为例
1
2011
... 1899年,O Schlüter发表的著名论文《城镇平面布局》,标志着城市形态学作为一门学科而诞生.自此以后,城市形态学形成了三大主要流派:英国Conzen学派,意大利Muratori-Caniggia学派和法国类型形态学[22].1984年城市形态学中出现了新的理论与分析方法—空间句法,该理论主要代表人物为B Hillier和J Hanson[23].其中,J Hanson从其研究之初就开始关注特定类型的建筑[24],紧随其后的大量工作使得特定类型建筑的研究在空间句法中占有非常重要的地位.其中关于家庭空间(house)的分析占据主导位置[25-29],研究不仅关注了家庭空间的空间逻辑及空间演变,也分析了房屋建造决策者对空间的影响等.此外,在特定类型建筑的研究中,对办公室[30]、博物馆[31]、宗教建筑[29]等也给予了分析,一方面探讨了空间组构问题,另一方面也对其社会逻辑(主要是功能)是如何影响空间组构的论题进行了解答.除此之外,还对精神病院③(③ De Syllas J. Domestic asylum: A study of 11 local authority hostels for mentally handicapped people. Brasilia: Proceedings of 2nd International Space Syntax Symposium, 1999.)、福利院④(④ De Arruda Campos M B, Lemlij M, Manning S. The role of the building layout in the delivery of social work services. Istanbul: Proceedings of 6th International Space Syntax Symposium, 2007.)、文学空间[32]等进行了阐释.在西方现有文献中,对特定建筑类型的关注主要集中在现代建筑方面,但对特定文化背景下出现的特定传统建筑类型的研究却相对匮乏.空间句法在私人领域建筑空间研究中强调渗透与隔离性,探讨了空间与人们日常行为模式及社会文化背景是如何衔接的,为中国文化背景下产生的家族空间、家空间研究提供了新的思路;在公共性建筑空间中强调引导与暗示性,探讨了空间组构与功能之间的关系,以满足广泛服务对象的需求.空间句法虽一直致力于探寻空间与社会文化之关系,但仍过多关注形态自身的话题,而在其与空间及空间意义、社会文化等关系的探讨上仍相对薄弱.反观国内,城市形态学更多地集中于中、宏观层面的研究[33-35].对于村落层面,主要关注村落聚居整体形态演变的驱动机制,对村落特定物质形态要素的分析比较少[36-38].对特定类型建筑空间,尤其是探讨传统建筑空间及其背后社会逻辑的文献在国内并不多见[39].对快速城市化进程中特定类型传统建筑的空间逻辑及其背后社会逻辑的研究则更显匮乏.祠堂是中国传统宗族文化作用下的空间产物,是中国传统建筑类型的典型代表之一,在快速城市化的进程中,祠堂空间逻辑的重构正映射出了中国传统宗族文化的重构. ...
基于空间句法的商品交易市场空间结构: 以义乌国际商贸城为例
1
2011
... 1899年,O Schlüter发表的著名论文《城镇平面布局》,标志着城市形态学作为一门学科而诞生.自此以后,城市形态学形成了三大主要流派:英国Conzen学派,意大利Muratori-Caniggia学派和法国类型形态学[22].1984年城市形态学中出现了新的理论与分析方法—空间句法,该理论主要代表人物为B Hillier和J Hanson[23].其中,J Hanson从其研究之初就开始关注特定类型的建筑[24],紧随其后的大量工作使得特定类型建筑的研究在空间句法中占有非常重要的地位.其中关于家庭空间(house)的分析占据主导位置[25-29],研究不仅关注了家庭空间的空间逻辑及空间演变,也分析了房屋建造决策者对空间的影响等.此外,在特定类型建筑的研究中,对办公室[30]、博物馆[31]、宗教建筑[29]等也给予了分析,一方面探讨了空间组构问题,另一方面也对其社会逻辑(主要是功能)是如何影响空间组构的论题进行了解答.除此之外,还对精神病院③(③ De Syllas J. Domestic asylum: A study of 11 local authority hostels for mentally handicapped people. Brasilia: Proceedings of 2nd International Space Syntax Symposium, 1999.)、福利院④(④ De Arruda Campos M B, Lemlij M, Manning S. The role of the building layout in the delivery of social work services. Istanbul: Proceedings of 6th International Space Syntax Symposium, 2007.)、文学空间[32]等进行了阐释.在西方现有文献中,对特定建筑类型的关注主要集中在现代建筑方面,但对特定文化背景下出现的特定传统建筑类型的研究却相对匮乏.空间句法在私人领域建筑空间研究中强调渗透与隔离性,探讨了空间与人们日常行为模式及社会文化背景是如何衔接的,为中国文化背景下产生的家族空间、家空间研究提供了新的思路;在公共性建筑空间中强调引导与暗示性,探讨了空间组构与功能之间的关系,以满足广泛服务对象的需求.空间句法虽一直致力于探寻空间与社会文化之关系,但仍过多关注形态自身的话题,而在其与空间及空间意义、社会文化等关系的探讨上仍相对薄弱.反观国内,城市形态学更多地集中于中、宏观层面的研究[33-35].对于村落层面,主要关注村落聚居整体形态演变的驱动机制,对村落特定物质形态要素的分析比较少[36-38].对特定类型建筑空间,尤其是探讨传统建筑空间及其背后社会逻辑的文献在国内并不多见[39].对快速城市化进程中特定类型传统建筑的空间逻辑及其背后社会逻辑的研究则更显匮乏.祠堂是中国传统宗族文化作用下的空间产物,是中国传统建筑类型的典型代表之一,在快速城市化的进程中,祠堂空间逻辑的重构正映射出了中国传统宗族文化的重构. ...